本文件主要涵盖了“GBT13868-2009感官实验室”相关内容,关于更多实验室建设问题可来电咨询,天元世纪竭诚为您服务!

前 言
本标准等同采用国际标准 ISO 8589:2007《感官分析 建立感官分析实验室的一般导则》(英 文版)。
本标准代替 GB/T 13868—1992《感官分析 建立感官分析实验室的一般导则》。本标准与
GB/T 13868—1992 相比,重大的技术内容变化主要有:
——实验室区域中新增加了供给品贮藏室、样品贮藏室和评价员休息室;
——检验区的一般要求中增加了检验区内专用照明设备的类型,评价小间中的设置增加了对电器
——接线口、计算机组件、信号系统等的要求;
——附录中增加了评价小间实例的图片;
——新添了附加信息一章。
本标准的附录 A 为资料性附录。
本标准由中国标准化研究院提出并归口。
本标准主要起草单位:中国标准化研究院、中国农业大学、浙江工商大学、北京汇源食品有限公司。
本标准主要起草人:刘文、赵镭、汪厚银、邓少平、战吉成、李绍振。
本标准所代替标准的历次版本发布情况为:
——GB/T 13868—1992。
感官分析 建立感官分析实验室的 一般导则
1.范围本标准规定了建立感官分析实验室的一般条件,实验室区域(检验区、准备区和办公室等)的布局, 以及不同区域的建设要求和应达到的效果。
本标准的规定不专门针对某种产品检验类型。
注:感官分析实验室既适用于食品的感官评价,也适用于非食品的感官评价。然而针对特定的用途,实验室需要进行调整。对于特定的检验产品或检验类型,尤其是对于非食品的感官评价,实验室设计常需要进行修改。
虽然许多基本原理是类似的,但本标准未涉及产品检验中的专项检查或企业内部品质控制等对检 验设施的要求。
2.规范性引用文件下列文件中的条款通过本标准的引用而成为本标准的条款。凡是注日期的引用文件,其随后所有 的修改单(不包括勘误的内容)或修订版均不适用于本标准,然而,鼓励根据本标准达成协议的各方研究 是否可使用这些文件的最新版本。凡是不注日期的引用文件,其最新版本适用于本标准。
GB/T 10221 感官分析 术语(GB/T 10221—1998,idt ISO 5492:1992)
3.术语和定义本标准采用了GB/T 10221中感官分析的有关术语和定义。
4.原则实验室的设计应:
—保证感官评价在已知和最小干扰的可控条件下进行; ——减少生理因素和心理因素对评价员判断的影响。
5.实验室的建立感官分析实验室的建立应根据是否为新建实验室或是利用已有设施改造而有所不同。
典型的实验室设施一般包括:
——供个人或小组进行感官评价工作的检验区;
——样品准备区;
——办公室;
——更衣室和盥洗室;
——供给品贮藏室;
——样品贮藏室;
——评价员休息室。
实验室至少应具备:
——供个人或小组进行感官评价工作的检验区;
——样品准备区。
感官分析实验室宜建立在评价员易于到达的地方,且除非采取了减少噪声和干扰的措施,应避免建在交通流量大的地段(如餐厅附近)。应考虑采取合理措施以使残疾人易于到达。
评价员在进入评价间之前,实验室最好能有一个集合或等待的区域。此区域应易于清洁以保证良 好的卫生状况。
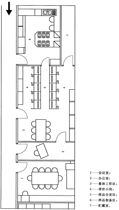
感官分析实验室的设计图例参见附录 A。
6.检验区6.1 一般要求6.1.1 位置检验区应紧邻样品准备区,以便于提供样品。但两个区域应隔开,以减少气味和噪声等干扰(见7.1)。
为避免对检验结果带来偏差,不允许评价员进入或离开检验区时穿过准备区。
6.1.2 温度和相对湿度检验区的温度应可控。如果相对湿度会影响样品的评价时,检验区的相对湿度也应可控。
除非样品评价有特殊条件要求,检验区的温度和相对湿度都应尽量让评价员感到舒适。
6.1.3 噪声检验期间应控制噪声。宜使用降噪地板,最大限度地降低因步行或移动物体等产生的噪声。
6.1.4 气味检验区应尽量保持无气味。 一种方式是安装带有活性炭过滤器的换气系统,需要时,也可利用形成 正压的方式减少外界气味的侵入。
检验区的建筑材料应易于清洁,不吸附和不散发气味。检验区内的设施和装置(如地毯、椅子等)也 不应散发气味干扰评价。根据实验室用途,应尽量减少使用织物,因其易吸附气味且难以清洗。
使用的清洁剂在检验区内不应留下气味。
6.1.5 装饰检验区墙壁和内部设施的颜色应为中性色,以免影响对被检样品颜色的评价。宜使用乳白色或中 性浅灰色(地板和椅子可适当使用暗色)。
6.1.6 照明感官评价中照明的来源、类型和强度非常重要。应注意所有房间的普通照明及评价小间的特殊照 明。检验区应具备均匀、无影、可调控的照明设施。
尽管不要求,但光源应是可选择的,以产生特定照明条件。
例如:色温为6500K 的灯能提供良好的、中性的照明,类似于“北方的日光”;色温为5000 K~ 5500 K的灯具有较高的显色指数,能模仿“中午的日光”。
进行产品或材料的颜色评价时,特殊照明尤其重要。为掩蔽样品不必要的、非检验变量的颜色或视 觉差异,可能需要特殊照明设施。可使用的照明设施包括:
——调光器;
——彩色光源;
——滤光器;
——黑光灯;
——单色光源,如钠光灯。
在消费者检验中,通常选用日常使用产品时类似的照明。检验中所需照明的类型应根据具体检验 的类型而定。
6.1.7 安全措施应考虑建立与实验室类型相适应的特殊安全措施。若检验有气味的样品,应配置特殊的通风橱;若 使用化学药品,应建立化学药品清洗点;若使用烹调设备,应配备专门的防火设施。
无论何种类型的实验室,应适当设置安全出口标志。
6.2 评价小间6.2.1 一般要求许多感官检验要求评价员独立进行评价。当需要评价员独立评价时,通常使用独立评价小间以在 评价过程中减少干扰和避免相互交流。
6.2.2 数量根据检验区实际空间的大小和通常的检验类型确定评价小间的数量,并保证检验区内有足够的活 动空间和提供样品的空间。
6.2.3 设置推荐使用固定的评价小间,也可使用临时的、移动的评价小间。
若评价小间是沿着检验区和准备区的隔墙设立的,则宜在评价小间的墙上开一窗口以传递样品。 窗口应装有静音的滑动门或上下翻转门等。窗口的设计应便于样品的传递并保证评价员看不到样品准 备和样品编号的过程。为方便使用,应在准备区沿着评价小间外壁安装工作台。
需要时应在合适的位置安装电器插座,以供特定检验条件下需要的电器设备方便使用。
若评价员使用计算机输入数据,要合理配置计算机组件,使评价员集中精力于感官评价工作。例 如,屏幕高度应适合观看,屏幕设置应使眩光最小,一般不设置屏幕保护。在令人感觉舒适的位置,安置 键盘和其他输入设备,且不影响评价操作。
评价小间内宜设有信号系统,以使评价员准备就绪时通知检验主持人,特别是准备区与检验区有隔 墙分开时尤为重要。可通过开关打开准备区一侧的指示灯或者在送样窗口下移动卡片。样品按照特定 的时间间隔提供给评价小组时例外。
评价小间可标有数字或符号,以便评价员对号入座。
6.2.4 布局和大小评价小间内的工作台应足够大以容纳以下物品:
——样品;
——器皿;
——漱口杯;
——水池(若必要);
——清洗剂;
——问答表、笔或计算机输人设备。
同时工作台也应有足够的空间,能使评价员填写问答表或操作计算机输入结果。
工作台长最少为0.9m, 宽0 . 6m。 若评价小间内需增加其他设备时,工作台尺寸应相应加大。工 作台要高度合适,以使评价员可舒适地进行样品评价。
评价小间侧面隔板的高度至少应超过工作台表面0.3 m, 以部分隔开评价员,使其专心评价。隔板 也可从地面一直延伸至天花板,从而使评价员完全隔开,但同时要保证空气流通和清洁。也可采用固定 于墙上的隔板围住就座的评价员。
评价小间内应设一舒适的座位,高度与工作台表面相协调,供评价员就座。若座位不能调整或移 动,座位与工作台间的距离至少为0.35m。 可移动的座位应尽可能安静地移动。
评价小间内可配备水池,但要在卫生和气味得以控制的条件下才能使用。若评价过程中需要用水,水的质量和温度应是可控的。抽水型水池可处理废水,但也会产生噪声。
如果相关法律法规有要求,应至少设计一个高度和宽度适合坐轮椅的残疾评价员使用的专用评价小间 。
6.2.5 颜色评价小间内部应涂成无光泽的、亮度因数为15%左右的中性灰色(如孟塞尔色卡N4 至 N5)。 当被检样品为浅色和近似白色时,评价小间内部的亮度因数可为30%或者更高(如孟塞尔色卡N6), 以降低 待测样品颜色与评价小间之间的亮度对比。
6.2.6 照明见6.1.6普通照明的要求。
6.3 集体工作区6.3.1 一般要求感官分析实验室常设有一个集体工作区,用于评价员之间以及与检验主持人之间的讨论,也用于评 价初始阶段的培训,以及任何需要讨论时使用。
集体工作区应足够宽大,能摆放一张桌子及配置舒适的椅子供参加检验的所有评价员同时使用(参 见附录 A 的示例)。桌子应较宽大以能放置以下物品:
——供每位评价员使用的盛放答题卡和样品的托盘或其他用具;
——其他的物品,如用到的参比样品、钢笔、铅笔和水杯等;
——计算机工作站(必要时)。
桌子中心可配置活动的部分,以有助于传递样品。也可配置可拆卸的隔板,以使评价员相互隔开, 进行独立评价。最好配备图表或较大的写字板以记录讨论的要点。
6.3.2 照明集体工作区的照明要求参见6.1.6。
7.准备区7.1 一般要求准备样品的区域(或厨房)要紧邻检验区,避免评价员进入检验区时穿过样品准备区而对检验结果 造成偏差。
各功能区内及各功能区之间布局合理,使样品准备的工作流程便捷高效。
准备区内应保证空气流通,以利于排除样品准备时的气味及来自外部的异味。
地板、墙壁、天花板和其他设施所用材料应易于维护、无味、无吸附性。
准备区建立时,水、电、气装置的放置空间要有一定余地,以备将来位置的调整。
7.2 设施准备区需配备的设施取决于要准备的产品类型。通常主要有:
——工作台。
——洗涤用水池和其他供应洗涤用水的设施。
——必要设备,包括用于样品的贮存、样品的准备和准备过程中可控的电器设备,以及用于提供样品的用具(如:容器、器皿、器具等)。设备应合理摆放,需校准的设备应于检验前校准。
——清洗设施。
——收集废物的容器。
——贮藏设施。
——其他必需的设施。
用于准备和贮存样品的容器以及使用的烹饪器具和餐具,应采用不会给样品带来任何气味或滋味 的材料制成,以避免玷染样品。
8.办公室8.1 一般要求办公室是感官评价中从事文案工作的场所,应靠近检验区并与之隔开。
8.2 大小办公室应有适当的空间,以能进行检验方案的设计、问答表的设计、问答表的处理、数据的统计分 析、检验报告的撰写等工作,需要时也能用于与客户讨论检验方案和检验结论。
8.3 设施根据办公室内需进行的具体工作,可配置以下设施:办公桌或工作台、档案柜、书架、椅子、电话、用 于数据统计分析的计算器和计算机等。
也可配置复印机和文件柜,但不一定放置在办公室中。
9.辅助区若有条件,可在检验区附近建立更衣室和盥洗室等,但应建立在不影响感官评价的地方。
设置用于存放清洁和卫生用具的区域非常重要。
10.附加信息新建或改建实验区之前,应对区域依次编码,并在有所改变时进行标注。
附 录 A
(资料性附录)
感官分析实验室设计图例
图 A.1 感官分析实验室平面图示例1

图 A.2 感官分析实验室平面图示例2

图 A.3 感官分析实验室平面图示例3

图 A.4 感官分析实验室平面图示例4

图 A.5 带有可拆卸隔板的桌子

图 A.6 用于个人检验或集体工作的检验区的建筑平面图

图 A.7 用隔段隔离开的评价小间和工作台平面图

图 A.8 人字形评价小间

图 A.9 传递样品窗口的式样

图 A.10 设立检验主持人座位的检验区

图 A.11 评价小间实例
参 考 文 献
[1] ISO 6658 Sensory analysis—Methodology—General guidance